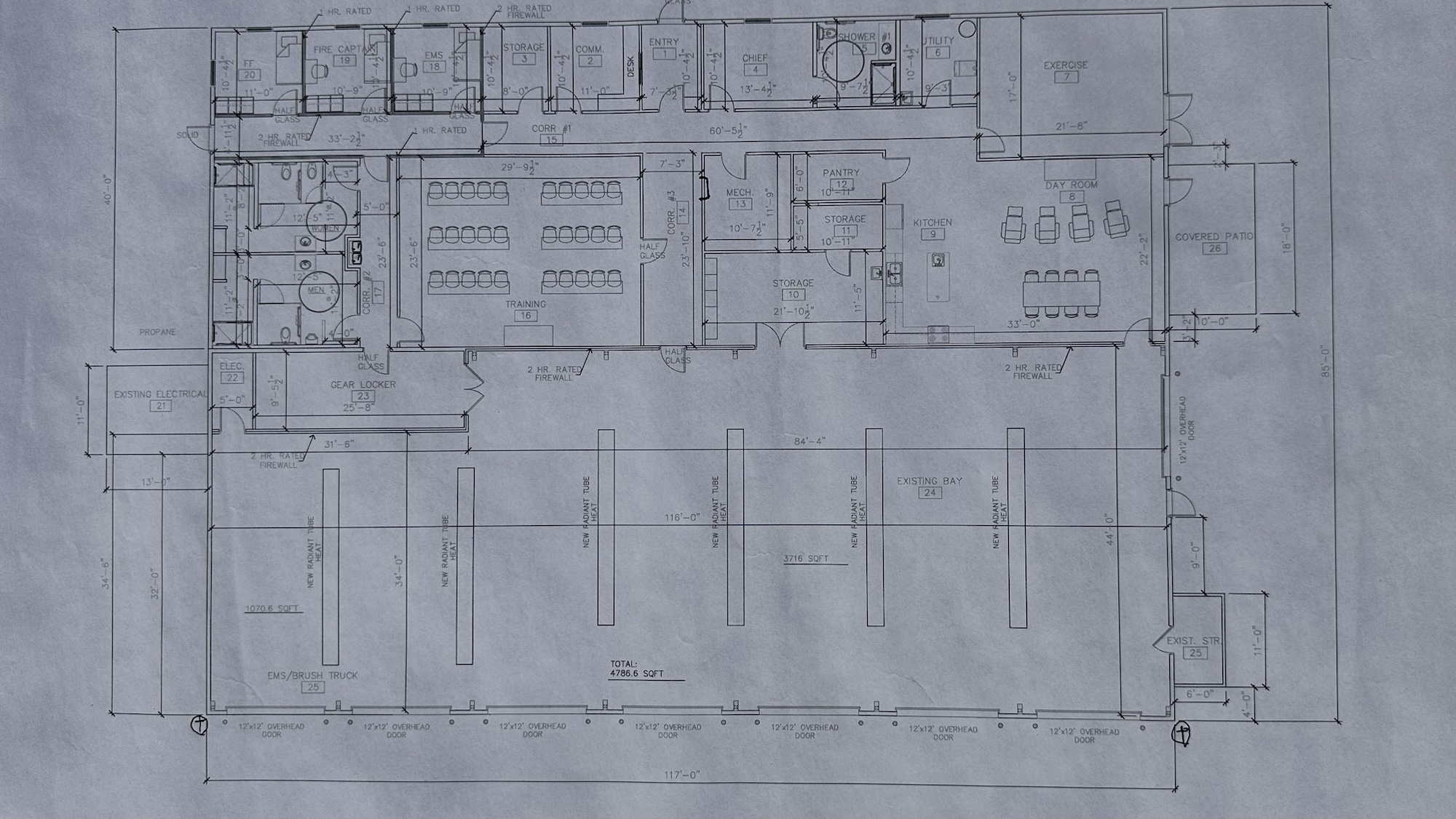
The fire station in Eagle Springs is about to get complete makeover with $2.1 million from local and state government. A groundbreaking ceremony was held Monday afternoon to kick off construction that is expected to take about a year to complete.
The renovations will double the size of the current fire station, and will be able to house staff 24 hours a day, 7 days a week. The station will also become a new EMS base for the western part of Moore County.
Not only will this expansion benefit the citizens of the area, but it will also provide better coverage and emergency response times for the nearby Samarcand Training Academy. The facility operated by the North Carolina Department of Public Safety conducts training exercises for agencies all across the state, and considers the staff of Eagle Springs Fire & Rescue as close partners to provide safe training at the academy.
Planning for the renovations has been long underway, starting in 2020 when Eagle Springs Fire Chief Mike St. Onge and then Representative Jamie Boles started the discussion to secure funds for the project. At the time, former Rep. Boles was able to get $300,000 allocated for the renovations, and since then, Senator Tom McInnis was able to get $1 million more allocated. The Moore County Commissioners provided an additional $800,000 in funds.




Construction is expected to start within a few weeks, according to a representative for D.R. Reynolds Company, who will be overseeing the construction of the project.
